Forum

Assist others, participate in conversations, and share your insights with the community.

Patrizio

The 3D Volume of a Room or compartment area

Patrizio 2025-09-24 15:41:01


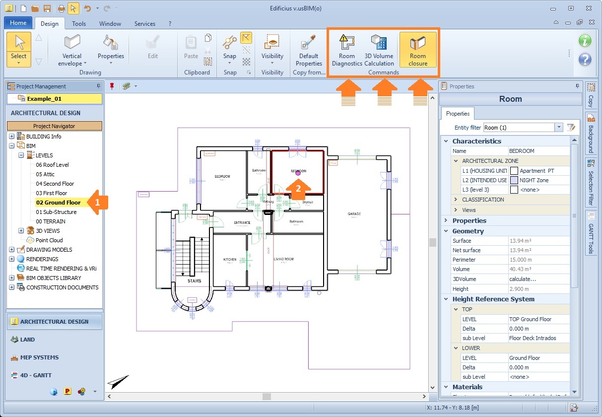
With the update to the new release of "usBIMe" in Edificius, a new tool called "Commands" has been added for the object "Room." To activate it, you need to select a Room, either on a level or in 3D (click HERE to see an image).

Inside this tool, you will find the following commands:
- Room Diagnostics - a new and more powerful diagnostic tool related to the closure of the room.
- 3D Volume Calculation - it calculates the volume of the room, checking for any discrepancies.
- Room Closure - by enabling or disabling it, you can consider or exclude columns from the room's surface area calculation.

In this discussion, we will delve into the "3D Volume Calculation" command.

But before we proceed, let's clarify a few things about the Room's volume. There are two different volumes available for the Room, namely:
- "Volume" - derived from the product of the surface and the height of the Room, where the Room's height is equal to the level to which the Room is associated. To calculate this volume, the Room needs to be closed as a surface.
- 3D Volume - it is derived from the volume created by the objects that define it in plan and 3D (typically, vertical and horizontal enclosures).

For this reason, the two volumes could have different values (click HERE to see an image).

With that said, let's get back to the topic of our discussion.

If, before requesting the 3D volume calculation, you activate the Room diagnostics, the report will show a "-" symbol in the "3D" column, indicating that the calculation has not been initiated (click HERE to see an image).

However, by selecting a Room and starting the 3D volume calculation, it is performed for ALL the rooms in the project.

In the case where the volume is calculated for the Room:
- In the diagnostics, the "3D" column displays the word "calculated."
- In the Properties, the calculated value is shown in the "3D Volume" field.
- In the 3D view, the volume is highlighted in green.

A different scenario occurs when the 3D volume for one or more rooms is NOT calculated. In this case, after the calculation, a message informs us about the presence of some rooms that are NOT properly closed. Confirming the message displays the diagnostics. The rooms that are not closed are highlighted in red, and the "3D" column shows "NOT closed" (click HERE to see an image).

It should be noted that for the 3D volume calculation to be performed for a room, its plan surface must be properly closed. If the room is not closed in the plan, the volume calculation will not be performed. You need to close the room in the plan first.

Therefore, it may happen that a Room, closed in the plan, is not closed in 3D. This might mean that you need to examine the 3D model to understand where the 3D volume is open.

By double-clicking the entry on the diagnostic report, you will be taken to the room in question. To understand what is causing the lack of 3D volume closure, the graphics come to your aid. The opening in the 3D volume of the room is identified by a polyline. The cause of the lack of volume closure could be a partition lower than the floor or a horizontal closure that does not completely enclose the volume, leaving a gap above and/or below.

You need to identify the cause of the lack of volume closure and correct it.

Related Discussion:
---> Room Diagnostics
---> Building room/compartment closures: Whether to consider columns in the space enclosure calculation or not