Forum

Assist others, participate in conversations, and share your insights with the community.

Patrizio

Building room/compartment closures: Whether to consider columns in the space enclosure calculation or not

Patrizio 2025-09-24 15:07:08


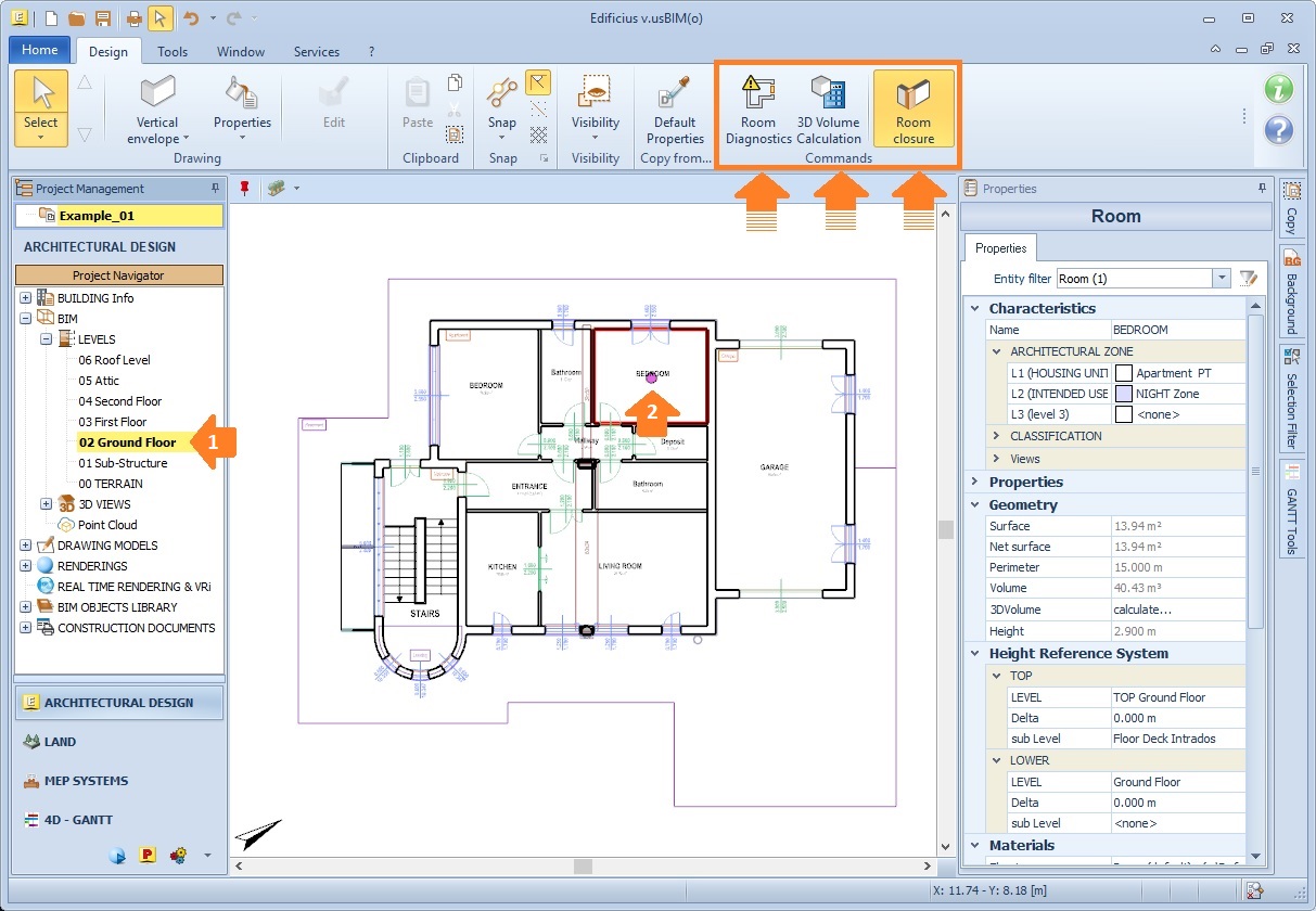
With the update to the new "usBIMe" release of Edificius, a new "Commands" tool has been added for the "Space" object. To enable it, select a Space on a level or in 3D (click HERE to view an image).

Within this tool, you'll find the following commands:
- Space Diagnostics - a new and more powerful diagnostic tool related to space enclosure;
- 3D Volume Calculation - calculates the volume of the space, checking for any inconsistencies;
- Space Enclosure - activating or deactivating this allows you to include or exclude columns from the space's perimeter enclosure.

In this discussion, let's delve into the "Space Enclosure" command.

Before we proceed, let's clarify some aspects related to space enclosure in a floor plan. Previously, space enclosure was achieved by creating a closed perimeter using only "Envelopes" objects. Starting from the "usBIMc" release of Edificius, the "Pillar" object also contributes to space enclosure.

With this change, when there are columns on the space's perimeter, it's no longer necessary to connect the envelopes to one another (and enclose the column inside). Instead, it's sufficient to stop the envelopes at the outer edge of the pillar.

Considering this, there are two different ways to model enclosures.
CASE 1 - You might have designed without considering the columns on the perimeter and connected the envelopes together;
CASE 2 - You might have designed by stopping the envelopes at the edge of the columns.

Now that we've clarified these aspects, let's return to the topic of this discussion, the "Space Enclosure" command.

When the command is ACTIVE (highlighted in yellow), columns also contribute to space enclosure when closing it. In this situation, whether you model as described in CASE 1 or CASE 2, the space will always be enclosed.

However, there is an exception to this rule. With the ACTIVE command and modeling as in CASE 2 (i.e., stopping the envelopes at the edge of the columns), if there are columns with "special" and/or "irregular" geometric shapes on the space's perimeter, Edificius will exclude these columns from the space enclosure. As a result, the space will remain open. A red polyline will indicate the space's perimeter, clearly showing the point where it remains unenclosed. This point will coincide with the irregular pillar (click HERE to see an example image).

When the command is INACTIVE, columns do not contribute to coherent space definition when closing a space. In this situation, if you model as described in CASE 1, the spaces will be enclosed. However, if you've modeled as described in CASE 2 and there are columns on the perimeter, all spaces will remain unenclosed.

In this case, you can reactivate the "Space Enclosure" command to reconsider the columns for space closure, or alternatively, you need to modify the geometry of the envelopes, extending and connecting them to create a closed perimeter for the space.

Related Discussions:
---> Room Diagnostics
---> The 3D Volume of a Room or compartment area