Forum

Assist others, participate in conversations, and share your insights with the community.

User_905162

Room Diagnostics

User_905162 2025-09-24 14:36:58


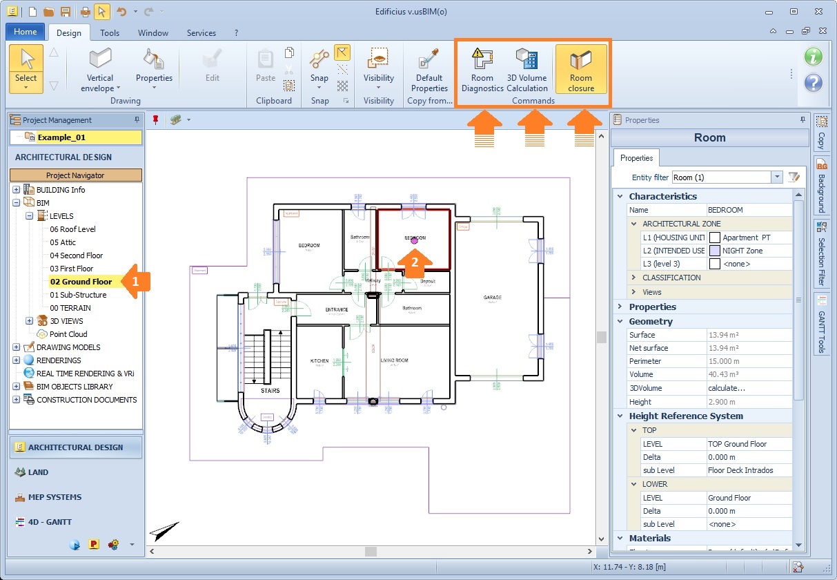
With the update to the new release of "usBIMe" in Edificius, a new tool called "Commands" has been added for the object "Room." To activate it, you need to select a Room, either on a level or in 3D (click HERE to see an image).

Inside this tool, you will find the following commands:
- Room Diagnostics - a new and more powerful diagnostic tool related to the closure of the room.
- 3D Volume Calculation - it calculates the volume of the room, checking for any discrepancies.
- Room Closure - by enabling or disabling it, you can consider or exclude columns from the room's surface area calculation.

 Click HERE to see an image.

In this discussion, we will focus on the "Room Diagnostics" command.

Once you select the command, a diagnostic report is displayed on the screen, listing ALL the rooms in the project. Each room is identified by its number, name, and the level to which it belongs.

The column Status indicates whether the room's surface is closed or not.

If the room has a closed perimeter, the room's name and the square meters of its surface are displayed on the level. In the report, the "Status" column shows "closed."

If the room has an unclosed perimeter, the level displays "<room in error>." In the report, the "Status" column shows "Object in error."  Click HERE to see an image.

In these cases, it would be advisable to resolve the lack of closure for the room. By double-clicking on the entry in the report, you will be taken to the level, to the "<room in error>."

In such situations, the cause of the unclosed room should be sought in the connections between the enclosures that define the room. It's highly likely that some connection is incomplete, leading to the room's failure to close properly. Identifying the unclosed connection, correcting it, will result in the room's closure, and subsequently, the surface calculation.

In the 3D column, the closure or lack thereof of the room's 3D volume is indicated, as well as whether the 3D volume has been calculated or not. The 3D volume calculation does not happen automatically. To perform it, you need to select a room and click the "3D Volume Calculation" button.

So, in cases where the 3D volume calculation hasn't been carried out, the "3D" column in the diagnostic report displays the symbol "-."

After the calculation is done:
- If the entire 3D surface of the room is correctly closed, the "3D" column displays "calculated."
- If the entire 3D surface of the room is not correctly closed, the "3D" column shows "NOT closed."

It should be noted that for the 3D volume calculation to be performed for a room, its plan surface must be properly closed.

By double-clicking on the entry, you'll be taken to the room indicated in the report. In this case, the room's volume is shown in 3D, highlighted in green, while the opening in the room's 3D volume is identified by a polyline. The cause of the lack of volume closure could be a partition lower than the floor or a horizontal closure that doesn't completely enclose the volume, leaving a gap.

Therefore, you need to identify the cause of the lack of volume closure and correct it.

Related video >>> The compartment/room diagnostics

Related Discussions:
---> Building room/compartment closures: Whether to consider columns in the space enclosure calculation or not
--->
The 3D Volume of a Room or compartment area