Foro

Usa el software con la ayuda de discusiones compartidas entre usuarios

Alexandra Vendramin

Duplicar/clonar un Plano

Alexandra Vendramin 2026-01-27 11:05:12


Quiero compartir una solicitud de soporte

Solicitud:
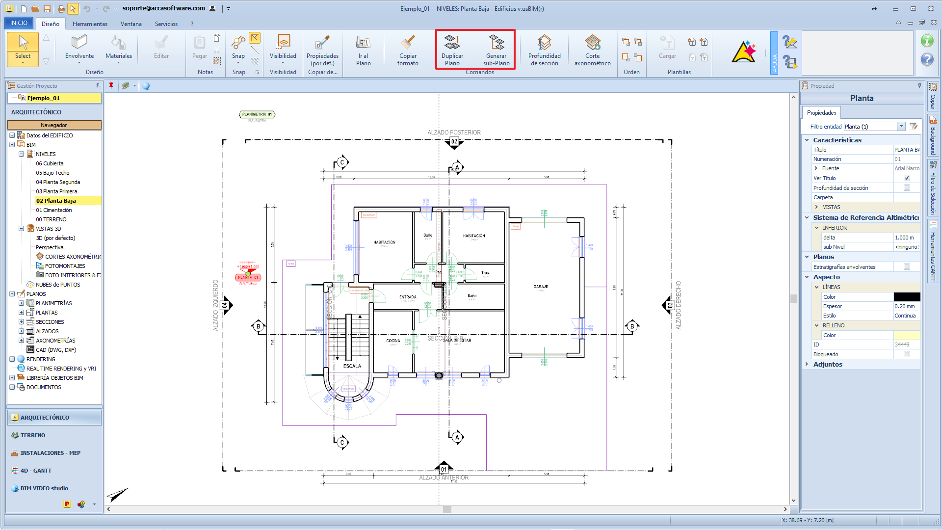
¿Puedo duplicar un plano?

Respuesta:
En Edificius es posible duplicar o clonar un plano.

Cómo proceder:
- Seleccionar el plano insertado en el nivel (por ejemplo, el símbolo de la planta o la línea de sección);
- En la barra multifunción superior, elegir entre las opciones Duplicar Plano o Generar sub-Plano.



Al hacer clic en Duplicar Plano, se creará un nuevo plano con todas las configuraciones y personalizaciones del plano original. También todos los objetos añadidos en el plano (objetos 2D, etc.) se copiarán en la misma posición.

Al hacer clic en Generar sub-Plano aparecerá en pantalla una ventana donde definir un subtítulo específico para el nuevo plano. Esta función prevé que el símbolo identificativo del plano no se duplique en el Nivel, por lo tanto, los dos planos pertenecerán al mismo símbolo. Además, en la lista de planos, se genera automáticamente una carpeta, donde se encuentran los dos planos (el plano original y su clon). En el plano clonado, además del título del plano, también aparecerá el subtítulo definido al momento de su creación.